Bernhard Peter
Pläne und Grundrisse: Kyoto, Hokyo-in



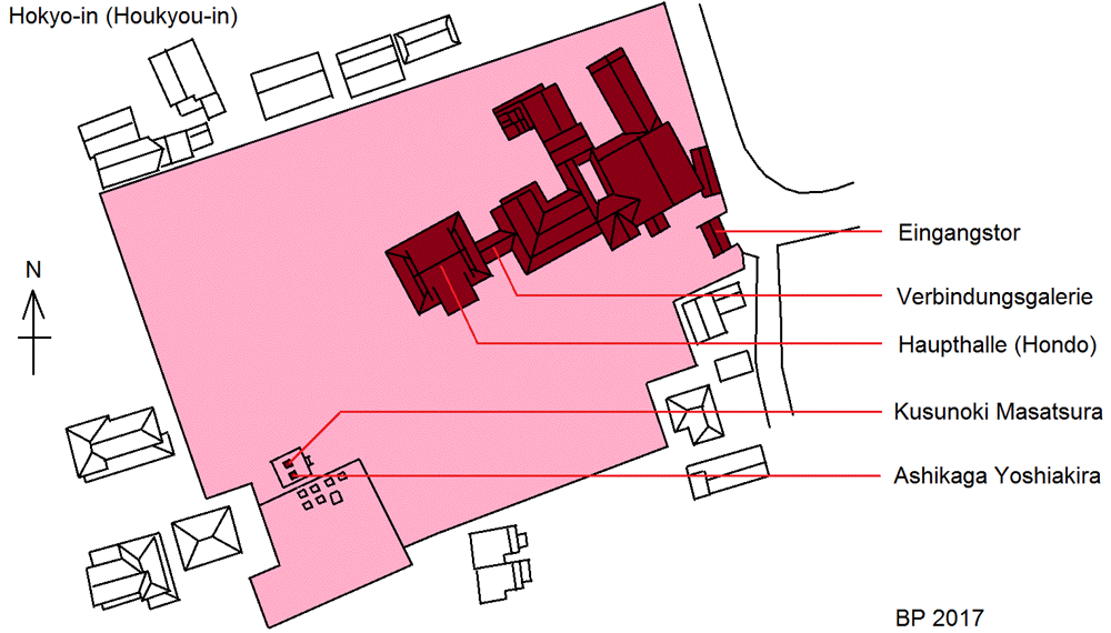
Hokyo-in, Kyoto
Andere Länderessays lesen
Home

© Copyright bzw. Urheberrecht an Text, Graphik und Photos: Bernhard Peter 2018
Impressum